2,5-vägare med aktiv delning

Hemmapulare debatterar lämpligen i detta forum.

Moderator: Redaktörer

Användarvisningsbild
Kalejdokom
ARTist
 
Inlägg: 7561
Blev medlem: 2007-10-28

2,5-vägare med aktiv delning

Inläggav Kalejdokom » 2010-08-23 17:44

För en tid sedan färdigställde jag dessa 2,5-vägare som jag varit mycket nöjd med (Scanspeak Revelator):

Bild

Jag har ett enkelt passivt delningsfilter till dessa. Mer finns att läsa här:

http://www.faktiskt.se/modules.php?name ... ic&t=24565

Emellanåt har jag dock upplevt basen som lite bumlig och funderat på att göra om till renodlad 3-vägare, men det vore synd på den kompetenta midbasen; att inte få använda den hela vägen ner.

18W har lite högre känslighet än 15W vilket jag tror är ett av problemen; det går ju inte att dämpa basen då den spelar hela vägen ner. Istället funderar jag på att dela och nivåanpassa den låga basen aktivt så här:

Bild

Men då undrar jag vad som händer? Kan det bli fasfel pga delay som blir mellan högtalarsignalen till "topparna" jämfört med lågnivåsignalen som går genom delningsfilter och separat slutsteg? Jag har inte tänkt använda något digitalt filter.

Ev andra problem detta kan medföra?

Användarvisningsbild
MagnusÖstberg
 
Inlägg: 30035
Blev medlem: 2009-03-30

Inläggav MagnusÖstberg » 2010-08-23 17:53

Jag ser det bara som positivt att avlasta middbasen, ett 18/18db filter runt 250hz vore perfekt. av en händelse har jag ett sådant liggande (Sentec EC-9), och det vore jättekul om du ville låna det och testa.

Vet inte hur baffelbredden är med avseende på baffelstegskompensation, ligger den på båda elementen idag?

Med 18db avrullning får du med middbasen från det mindre elementet, samtidigt som det avlastas från luftpumpningsfrekvenser.
Jag saknar dig.
Medlem på www.faktiskt.se sedan 2006

Användarvisningsbild
Kalejdokom
ARTist
 
Inlägg: 7561
Blev medlem: 2007-10-28

Inläggav Kalejdokom » 2010-08-23 19:09

Hygglo! Men jag har filter med ställbar delning som jag först tänkt laborera med. Misstänker att det handlar om att både hitta rätt delning och lämplig gain för att matcha topparna.

Jag har ingen baffelstegskomp i befintligt filter (se längst ner på sidan 2 i min byggtråd).

Fattar jag det som att du föreslår ett högpass på midbasen? Då blir det ju en trevägare...

Användarvisningsbild
MagnusÖstberg
 
Inlägg: 30035
Blev medlem: 2009-03-30

Inläggav MagnusÖstberg » 2010-08-23 20:06

Jag föreslår just att du testar det som en 3-vägare.

Då vinner nog mycket i ljudkvalitet på det då elementen inte kommer ha samma fasgång i basen vid en 2,5-vägare då det dels är olika element.
Jag saknar dig.
Medlem på www.faktiskt.se sedan 2006

Användarvisningsbild
Kalejdokom
ARTist
 
Inlägg: 7561
Blev medlem: 2007-10-28

Inläggav Kalejdokom » 2010-08-23 20:28

Men hur skulle jag få till den passiva HP-delningen till topparna :roll: ? Jag tänkte mig bara aktiv drivning till bottenbasen. Och blir det 3-vägare tänker jag nog bygga ett helt passivt filter.

Det retar mig lite om jag skulle konstatera att det bli bäst med en 3-vägare eftersom jag vet att 15W-basen är just ett mycket bra baselement. Jag kör ju lådorna som 2-vägare nu (utan 18W-basen) och det låter förträffligt!

Därav att jag ställt frågan om 15M/4624 i den här tråden:

http://www.faktiskt.se/modules.php?name ... ic&t=38969

Detta nya mellanregister från SS har samma ytterdiameter som 15W och betydligt bättre kurva, på pappret, som mellenregister. Alltså tänker jag i så fall byta till 15M/4624 och använda 15W-basen till ett par 7-liters monitorer!

Användarvisningsbild
MagnusÖstberg
 
Inlägg: 30035
Blev medlem: 2009-03-30

Inläggav MagnusÖstberg » 2010-08-23 21:57

Tycker det elementet ser lite klurigt att få till det med :?

Skulle kanske vara super i en 4-vägare...

Jag tycker du skall leta upp ett steg till och testa det som en 3-vägare med aktiv delning mellan bas och boomer :)
Jag saknar dig.
Medlem på www.faktiskt.se sedan 2006

Användarvisningsbild
Kalejdokom
ARTist
 
Inlägg: 7561
Blev medlem: 2007-10-28

Inläggav Kalejdokom » 2010-08-23 22:38

Det blir till att blogga på Vintage-forat då... med några NAD 3020 som slutsteg 8). Fast helst vill jag slippa fler "burkar" i det redan övermöblerade arbets-/ljudrummet (under skrivbordet):

Bild

Det står ju en del junk även på andra platser, bakom soffan mm...

Vad är f.ö. problemet med 15M som mellanregister i 3-vägare?

Användarvisningsbild
MagnusÖstberg
 
Inlägg: 30035
Blev medlem: 2009-03-30

Inläggav MagnusÖstberg » 2010-08-23 22:44

Klurigt med energiresponsen som avviker så mycket i de övre registrena mellan spridningsvinklarna. Tycker jag. Man kan ju liksom inte dämpa bara nollgradersriktningen..
Jag saknar dig.
Medlem på www.faktiskt.se sedan 2006

Användarvisningsbild
Kalejdokom
ARTist
 
Inlägg: 7561
Blev medlem: 2007-10-28

Inläggav Kalejdokom » 2010-08-23 23:02

Jag tycker att de flesta (av Scanspeaks) mellanregister uppvisar liknande "problem" i de övre registren. Det är inga problem att dela den aktuella diskanten runt 2kHz och då är ju spridningsdifferensen i mellanregistret inte lika stor.

Nu* ska vi först testa lite enligt mina tankar om att behålla 2,5-vägsmodellen och aktiv drivning av lågbasen så får vi se sen :).

*) Begreppet "nu" tenderar tyvärr i DIY-sammanhang att vara en mycket tänjbar tidsrymd.

Användarvisningsbild
AndersD
 
Inlägg: 1667
Blev medlem: 2008-04-29
Ort: Södra Sandby

Inläggav AndersD » 2010-08-23 23:03

MagnusÖstberg skrev:Klurigt med energiresponsen som avviker så mycket i de övre registrena mellan spridningsvinklarna. Tycker jag. Man kan ju liksom inte dämpa bara nollgradersriktningen..


Medhåll...det ser inte så kul ut om man vill dela högt.

Men.......<= 2kHz skulle det nog funka rätt OK, å andra sidan hade jag nog valt att behålla W15 i en sådan konfiguration.

Var ligger delningen mellan W15 och diskant idag?

edit: Kalejdokom postade när jag skrev......

Användarvisningsbild
Kalejdokom
ARTist
 
Inlägg: 7561
Blev medlem: 2007-10-28

Inläggav Kalejdokom » 2010-08-23 23:09

diesel skrev:Var ligger delningen mellan W15 och diskant idag?

Runt 3kHz@18dB, men jag har inte gjort några off-axis mätningar.

Användarvisningsbild
AndersD
 
Inlägg: 1667
Blev medlem: 2008-04-29
Ort: Södra Sandby

Inläggav AndersD » 2010-08-23 23:21

Kalejdokom skrev:...Nu* ska vi först testa lite enligt mina tankar om att behålla 2,5-vägsmodellen och aktiv drivning av lågbasen så får vi se sen :).....


Upplever du basen från 15W som bättre än 18W?
(Jag letar anledningar till att du vill ha med 15W-drivern ända från botten).

Min uppfattning är att du inte vinner så mycket på en 2.5-vägs-konstruktion, känsligheten höjs inte radikalt då du har olika drivers varav den ena har ganska låg känslighet.

I en trevägskonstruktion hamnar största delen av baffelsteget på 18W-drivern som har 3(?) dB högre känslighet så det blir ingen jätteskillnad konstruktionerna mellan.

Däremot hade 15W mått alldeles utmärkt av att slippa spela under 300 Hz (även om den är bra på detta). Denna aspekt tycker jag överväger....

Mina 5 cent........(som blev en kopia av MÖs uppfattning när jag läser nu i efterhand)

Användarvisningsbild
Kalejdokom
ARTist
 
Inlägg: 7561
Blev medlem: 2007-10-28

Inläggav Kalejdokom » 2010-08-23 23:27

Hm... 2 mot 1. Men jag är förstås prestigelös och ödmjuk :).

15W och 18W är mycket lika men 18W går förstås lite lägre men kräver också betydligt större kavitet i basreflex.

Skillnaden i känslighet är väl inget problem om man väljer aktiv delning/drivning - det var ju just det problemet jag ville komma förbi genom denna lösning.

Användarvisningsbild
AndersD
 
Inlägg: 1667
Blev medlem: 2008-04-29
Ort: Södra Sandby

Inläggav AndersD » 2010-08-23 23:40

Kalejdokom skrev:
diesel skrev:Var ligger delningen mellan W15 och diskant idag?

Runt 3kHz@18dB, men jag har inte gjort några off-axis mätningar.


Det finns ju många sätt att "flå en katt" eller vad det heter...... :)

Ditt sätt är precis lika bra som andras och jag misstänker att du lyssnat in dina burkar rejält innan du spikade designen. 15W gör INTE bort sig lite högre upp åtminstone inte distortionsmässigt.

Själv har jag en tendens att dela så lågt jag kan, tycker jag har bättre grepp på energiresponsen på det sättet.

Off axis mätningar är vanskliga, plötsligt börjar man höra dipparna bara för man sett kurvorna med ögonen.......och det låter inte bra förrän kurvorna är utan dippar, trots att de gjorde det innan man mätte :lol:

Användarvisningsbild
AndersD
 
Inlägg: 1667
Blev medlem: 2008-04-29
Ort: Södra Sandby

Inläggav AndersD » 2010-08-23 23:49

Kalejdokom skrev:Hm... 2 mot 1. Men jag är förstås prestigelös och ödmjuk :).

15W och 18W är mycket lika men 18W går förstås lite lägre men kräver också betydligt större kavitet i basreflex.

Skillnaden i känslighet är väl inget problem om man väljer aktiv delning/drivning - det var ju just det problemet jag ville komma förbi genom denna lösning.


Kan du justera fasen i ditt filter?
Som Magnus skriver, de två elementen är olika och kommer att ha olika faskurvor och olika "fashastighet", vad heter det nu.....faslöptid(?)

Många (här på faktiskt) framhåller att man ska dämpa, inte boosta med ett aktivt filter. Har ingen erfarenhet själv av detta så jag ska låta det vara osagt.


Men.........det är klart du ska testa!!
Det värsta som kan hända är ju att det låter dåligt.

Bara du lovar att testa trevägaren också :)

Användarvisningsbild
IngOehman
 
Inlägg: 48470
Blev medlem: 2003-09-28
Ort: K-PAX via Tellus

Re: 2,5-vägare med aktiv delning

Inläggav IngOehman » 2010-08-23 23:57

Kalejdokom skrev:För en tid sedan färdigställde jag dessa 2,5-vägare som jag varit mycket nöjd med (Scanspeak Revelator):

Bild

Jag har ett enkelt passivt delningsfilter till dessa. Mer finns att läsa här:

http://www.faktiskt.se/modules.php?name ... ic&t=24565

Emellanåt har jag dock upplevt basen som lite bumlig och funderat på att göra om till renodlad 3-vägare, men det vore synd på den kompetenta midbasen; att inte få använda den hela vägen ner.

18W har lite högre känslighet än 15W vilket jag tror är ett av problemen; det går ju inte att dämpa basen då den spelar hela vägen ner. Istället funderar jag på att dela och nivåanpassa den låga basen aktivt så här:

Bild

Men då undrar jag vad som händer? Kan det bli fasfel pga delay som blir mellan högtalarsignalen till "topparna" jämfört med lågnivåsignalen som går genom delningsfilter och separat slutsteg? Jag har inte tänkt använda något digitalt filter.

Ev andra problem detta kan medföra?

Den där sortens aktivt "kompletterande" av baselementet fungerar
som regel mycket dåligt om LP-filtret är ett normalt sådant som brukar
användas för aktiva delningsändamål.

Du kommer att få svåra utsläckningar (även om det finns medicin för
sådant också).


Att det blir lite för fett i basen med nuvarande 2,5-vägsdelning förstår
jag* och det lär heller inte vara det enda problemet, eftersom det även
brukar vara en svaghet att det större baselementet aldrig kan utnyttjas
i sådana där konfigurationer. Det mindre elementet håller helt enkelt
prestanda tillbaka när det skall vara med i ekvationen, och då sätter
gränsen för vad högtalaren tål.


Vh, iö

- - - - -

*Nu finns det ju inget entydigt svar på hur stor baffelkompensationen
skall vara, men ofta hamnar man i storleksordningen 4 dB, medan du
i ditt 2,5-vägsfall, hamnar på nära 8 dB! :?
Fd psykoakustikforskare & ordf LTS. Nu akustiker m specialiteten
studiokontrollrum, hemmabiosar & musiklyssnrum. Även Ch. R&D
åt Carlsson och Guru, konsult åt andra + hobbyhögtalartillv (Ino).

Användarvisningsbild
IngOehman
 
Inlägg: 48470
Blev medlem: 2003-09-28
Ort: K-PAX via Tellus

Inläggav IngOehman » 2010-08-24 00:18

diesel skrev:
MagnusÖstberg skrev:Klurigt med energiresponsen som avviker så mycket i de övre registrena mellan spridningsvinklarna. Tycker jag. Man kan ju liksom inte dämpa bara nollgradersriktningen..


Medhåll...det ser inte så kul ut om man vill dela högt.

Men.......<= 2kHz skulle det nog funka rätt OK, å andra sidan hade jag nog valt att behålla W15 i en sådan konfiguration.

Var ligger delningen mellan W15 och diskant idag?

edit: Kalejdokom postade när jag skrev......

Elementet skiljer sig faktiskt inte nämnvärt från andra element av
samma storlek, spridningsmässigt. Alltså: Nollgraderskurvan och
energikurvan förhåller sig till varandra snarlikt som de gör på alla
element som är ungefär så stora.

Det har talats om tredje ordningens delningsfilter här i tråden, och
med sådant ser jag inget som tyder på att elementet skulle vara
speciellt knepigt och krävande - läs kräva låga delningsfrekvenser.
Snarare tvärt om. Elementet skulle faktiskt kunna delas vid 4 kHz.


Vh, iö
Fd psykoakustikforskare & ordf LTS. Nu akustiker m specialiteten
studiokontrollrum, hemmabiosar & musiklyssnrum. Även Ch. R&D
åt Carlsson och Guru, konsult åt andra + hobbyhögtalartillv (Ino).

Användarvisningsbild
Kalejdokom
ARTist
 
Inlägg: 7561
Blev medlem: 2007-10-28

Re: 2,5-vägare med aktiv delning

Inläggav Kalejdokom » 2010-08-24 00:25

IngOehman skrev:Nu finns det ju inget entydigt svar på hur stor baffelkompensationen skall vara, men ofta hamnar man i storleksordningen 4 dB, medan du i ditt 2,5-vägsfall, hamnar på nära 8 dB! :?

Hm, nu får vi backa bandet. Med min amatörmässiga utgångspunkt har jag förstått att en högtalare i regel tappar ljudtryck i de lägre frekvenserna, beroende på att vi där saknar stöd från baffeln. En 2,5-vägare ska ju därför i princip kompensera för detta genom att ha två element som spelar tillsammans under "baffelstegsfrekvensen". Vad menar du då med att jag hamnar på nära 8dB? Skulle min konstruktion få omvänd baffelstegseffekt jämfört med en "normal" 2,5-vägare?

Användarvisningsbild
Kalejdokom
ARTist
 
Inlägg: 7561
Blev medlem: 2007-10-28

Inläggav Kalejdokom » 2010-08-24 00:28

IngOehman skrev:Elementet skulle faktiskt kunna delas vid 4 kHz.

Syftar du på mitt aktuella 15W eller förslaget på byte till 15M/4624?

Användarvisningsbild
IngOehman
 
Inlägg: 48470
Blev medlem: 2003-09-28
Ort: K-PAX via Tellus

Re: 2,5-vägare med aktiv delning

Inläggav IngOehman » 2010-08-24 02:27

15M/4624, fast egentligen båda. ;)

Kalejdokom skrev:
IngOehman skrev:Nu finns det ju inget entydigt svar på hur stor baffelkompensationen skall vara, men ofta hamnar man i storleksordningen 4 dB, medan du i ditt 2,5-vägsfall, hamnar på nära 8 dB! :?

Hm, nu får vi backa bandet. Med min amatörmässiga utgångspunkt har jag förstått att en högtalare i regel tappar ljudtryck i de lägre frekvenserna, beroende på att vi där saknar stöd från baffeln. En 2,5-vägare ska ju därför i princip kompensera för detta genom att ha två element som spelar tillsammans under "baffelstegsfrekvensen". Vad menar du då med att jag hamnar på nära 8dB? Skulle min konstruktion få omvänd baffelstegseffekt jämfört med en "normal" 2,5-vägare?

Men skulle kunna säga, att detta att bygga sig 2,5-vägssystem är
ett sätt att liksom bygga in baffelkorrektionen i högtalaren, så man
slipper dämpa mellanregisterområdet.

Om man använder två likadana element blir baffelkorrektionen bara
~2 dB för stor* (6 dB istället för 4 dB). Men du använder ju inte alls
två likadana element - utan du låter ett känsligare element komma
in som "halvvägaren".

20*LOG((1+1)/1) = +6 dB (ungefär).

20*LOG((1+0,7)/0,7) = +8 dB (eller är i varje fall på väg ditåt ;)).


Vh, iö

- - - - -

*Vilket inte alls behöver vara sant, eftersom det ju inte alls är givet
att den gällande utgångspunkten var ett element som inte har någon
naturlig stigning i mellanregisterområdet. Ej heller att lådan ger helt
"ofallande" tonkurva i basen. Varje dB extra i mellanregisterområdet,
eller varje dB missad i basområdet, gör att det blir mindre än 6 dB.

Så i verkligheten är det inte alls ovanligt att man lätt når de ~4 dB
som man kan behöva, med hjälp av just den där 2,5-vägssystems-
konfigorationen.

Men frågan är om man vill ha lobingen som ofta gör att det ljud som
studsat i golvet är starkare än de som kommer direkt från högtalarna,
i varje fall vid vissa frekvenser?
Fd psykoakustikforskare & ordf LTS. Nu akustiker m specialiteten
studiokontrollrum, hemmabiosar & musiklyssnrum. Även Ch. R&D
åt Carlsson och Guru, konsult åt andra + hobbyhögtalartillv (Ino).

Användarvisningsbild
Kalejdokom
ARTist
 
Inlägg: 7561
Blev medlem: 2007-10-28

Inläggav Kalejdokom » 2010-08-24 07:23

Tack IÖ för kloka ord och en förklaring som jag kan köpa.

Jag vet att du föraktar försök till kopiering av färdiga koncept, men som jag nämner i min byggtråd har jag ändå tagit inspiration av t.ex. Phonar Credo S100, som använder likadana element i en snarlik konstruktion - och uppenbarligen lyckats trots olika baselement. Nu vet jag ju inget om filtret i S100 som kanske rättar till de där "felen" som uppstår.

Efter mina intryck från dina och övrigas inlägg i tråden är jag dock benägen att ge 3-vägaren en chans!

Användarvisningsbild
AndersD
 
Inlägg: 1667
Blev medlem: 2008-04-29
Ort: Södra Sandby

Inläggav AndersD » 2010-08-24 08:41

IngOehman skrev:
diesel skrev:
MagnusÖstberg skrev:Klurigt med energiresponsen som avviker så mycket i de övre registrena mellan spridningsvinklarna. Tycker jag. Man kan ju liksom inte dämpa bara nollgradersriktningen..


Medhåll...det ser inte så kul ut om man vill dela högt.

Men.......<= 2kHz skulle det nog funka rätt OK, å andra sidan hade jag nog valt att behålla W15 i en sådan konfiguration.

Var ligger delningen mellan W15 och diskant idag?

edit: Kalejdokom postade när jag skrev......

Elementet skiljer sig faktiskt inte nämnvärt från andra element av
samma storlek, spridningsmässigt. Alltså: Nollgraderskurvan och
energikurvan förhåller sig till varandra snarlikt som de gör på alla
element som är ungefär så stora.

Det har talats om tredje ordningens delningsfilter här i tråden, och
med sådant ser jag inget som tyder på att elementet skulle vara
speciellt knepigt och krävande - läs kräva låga delningsfrekvenser.
Snarare tvärt om. Elementet skulle faktiskt kunna delas vid 4 kHz.


Vh, iö


jag får erkänna att jag var lite snabb där och blev lurad av den stigande nollgraderskurvan på 15M.

Men 4 kHz 8O

Både 15W och 15M har cirka 12 dB skillnad mellan noll och 60-graderskurvan vid 4 kHz. Kalejdokoms diskant har ca 4 dB skillnad vid samma frekvens.

Blir det inte en rejäl knyck uppåt i energirespons om man delar så högt ?

Användarvisningsbild
Kalejdokom
ARTist
 
Inlägg: 7561
Blev medlem: 2007-10-28

Inläggav Kalejdokom » 2010-08-24 09:32

Låt oss filosofera lite kring konsekvenserna av energivarians vid olika spridningsvinklar (så att jag kan förstå lite bättre).

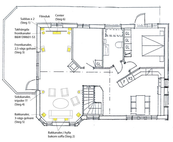
Mitt lyssnings-/bio-/vardagsrum är en totalkompromiss av funktion och konstruktion, med vinklat ryggåstak och öppet till trappa och intilliggande kök. Allt annat än ett optimalt ljudrum alltså ("Steg X" refererar till mina byggtrådar för respektive högtalare):

Bild

De aktuella högtalarna är alltså frontkanalerna (Steg 3). Med nuvarande möblering sitter man som max +/- 10grader off axis vid normal lyssning eller biotittande. Om det är flera personer på plats kan man som värst hamna ca 25 grader "fel".

Hur ska vi då tolka off-axis-effekten? Båda högtalarna står nära sidoväggarna. I min värld innebär det att det ljud som sprids i sidled alltså reflekteras i väggen. Är det då inte en fördel att ha dålig spridning (så att reflexerna minimeras)?

Eller är jag ute och hojjar i det blå nu :) ?

Användarvisningsbild
AndersD
 
Inlägg: 1667
Blev medlem: 2008-04-29
Ort: Södra Sandby

Inläggav AndersD » 2010-08-24 10:34

Med risk för att jag också är ute och "hojjar i det blå" :)

Den upplevda tonala balansen hos en högtalare beror på många parametrar och som det brukar tjatas om är inte direktkurvans utseende allenarådande.

Den totala utstrålade ljudet (i alla riktningar) är väldigt avgörande och som jag uppfattar problematiken (både genom massor av egna tester samt massor av läsande på nätet) beror den tonala balansen bl a på en kombination av de två nämnda parametrarna plus rummets egenskaper.

Direktljudet borde bli mer "dominerande" i ett väldämpat rum medan energiresponsen kan vara mer dominerande (i den upplevda tonala balansen) om rummet inte är så väldämpat.

En högtalare med "rak" energikurva kan låta väldigt "ljus" och diskantrik trots att direktkurvan har en fallande tendens.

Dippar i energikurvan (som en funktion av dålig horisontell off axis respons) gör att en högtalare låter "innestängd" och "livlös", dämpad helt enkelt....enligt mina öron.

Nu är det naturligtvis väldigt svårt att mäta energiresponsen (om man inte har oändligt antal mätpunkter 8)) men jag tycker man kan skatta detta på ett OK sätt genom att studera off axis responsen. Har läst någonstans att energikurvan approximerar bra mot horisontell 30-gradersmätning, huruvida detta stämmer eller ej vågar jag inte uttala mig om men det kan kanske andra som har mer kunskap i ämnet göra.

Som sagt.....risken finns att jag är ute o "hojjar i det blå"


Hade varit intressant att höra IÖs ideer runt detta!

Användarvisningsbild
Kalejdokom
ARTist
 
Inlägg: 7561
Blev medlem: 2007-10-28

Inläggav Kalejdokom » 2010-08-24 11:52

diesel skrev:Hade varit intressant att höra IÖs ideer runt detta!

+1

...när börjar taxan ticka för akustikkonsultation, tro...? :oops:

Men jag säger som kompisens farsa alltid sa när vi som barn fick åka med dom "till landet" och tog vägen förbi godisaffären: "Ta tills ni skäms"!

Användarvisningsbild
Naqref
Saknad grundare, †2014
 
Inlägg: 27893
Blev medlem: 2003-03-23
Ort: Krischansta

Inläggav Naqref » 2010-08-24 13:14

diesel skrev:Både 15W och 15M har cirka 12 dB skillnad mellan noll och 60-graderskurvan vid 4 kHz. Kalejdokoms diskant har ca 4 dB skillnad vid samma frekvens.

Blir det inte en rejäl knyck uppåt i energirespons om man delar så högt ?


Energiresponsen får en viss dämpning i detta område men inte så mycket som man kan tro eftersom filtrena inte är oändligt branta och diskanten fyller ut en bit nedåt. Den största svackan blir nog runt 3kHz vilket kan vara bra beroende på vilken filosofi man hänger sig åt och hur högtalarna optimeras. 4kHz skulle nog vara lite för högt för mina preferenser men 3kHz skulle säkert gå bra.
Audiodesigner åt en del. Larsen, Holographic Audio etc.
CEO och huvudägare i Acoustic Landscape R&D AB.
CTO / R&D Manager och delägare i Acoustic Illusion AB.

Användarvisningsbild
Naqref
Saknad grundare, †2014
 
Inlägg: 27893
Blev medlem: 2003-03-23
Ort: Krischansta

Inläggav Naqref » 2010-08-24 13:18

Kan ju tillägga att om du kör med ett mer avancerat delningsfilter (typ dcx2496) så går det faktiskt utmärkt att göra om högtalaren till en 2.5-vägsfunktion som fungerar ypperligt och där alla elementen optimeras i sitt verksamma område på ett snyggt sätt. Det kräver dock att man verkligen vet vad man håller på med och utgår ifrån mätningar.
Audiodesigner åt en del. Larsen, Holographic Audio etc.
CEO och huvudägare i Acoustic Landscape R&D AB.
CTO / R&D Manager och delägare i Acoustic Illusion AB.

Användarvisningsbild
AndersD
 
Inlägg: 1667
Blev medlem: 2008-04-29
Ort: Södra Sandby

Inläggav AndersD » 2010-08-24 13:28

Naqref skrev:Kan ju tillägga att om du kör med ett mer avancerat delningsfilter (typ dcx2496) så går det faktiskt utmärkt att göra om högtalaren till en 2.5-vägsfunktion som fungerar ypperligt och där alla elementen optimeras i sitt verksamma område på ett snyggt sätt. Det kräver dock att man verkligen vet vad man håller på med och utgår ifrån mätningar.


Använder man LspCad är ju detta ett helt underbart scenario då DCX2496 finns som "komponent" i filtersimulatorn......

Många funktioner är väl likartade mellan DEQ och DCX, för det är väl ett DEQ2496 du har Kalejdokom? (eller ser jag fel på bilderna?)

edit: Rättar mig själv, DEQ har ingen filterfunktion så det var inget bra förslag :oops:

Användarvisningsbild
Kalejdokom
ARTist
 
Inlägg: 7561
Blev medlem: 2007-10-28

Inläggav Kalejdokom » 2010-08-24 13:44

Jo då, det är DEQ jag har, men tyvärr används den till mina f.d. dipoler (numera 3-vägare). Till detta projekt hade jag tänkt använda ett simpelt CX2310, men då saknar jag förstås helt möjligheten till att ställa individuell branthet, fas och delay.

Det är ju liksom ingen ekonomi i att skaffa ytterligare hårdvara för X tusen, bara för att få hyfs på ett DIY-projekt. Vi ska nog få till det med tillgängliga medel. Kanske blir det väl att komplettera med komponenter till ett passivt filter på något sätt - vi får se när jag sätter spaden i jorden.

Hur som helst, mycket inspirerande att dryfta, vrida, vända och resonera kring alla möjligheter (och omöjligheter). Tack för all input, so far! Det vore väl på sin plats oxo att mäta/dokumentera lite innan jag påbörjar någon förändring, så att man kan jämföra senare.

Edit: du har rätt i att DEQ saknar filter. Jag tänkte mest på EQ-funktionen för att rätta till ev berg- och dalbana...

Användarvisningsbild
Kalejdokom
ARTist
 
Inlägg: 7561
Blev medlem: 2007-10-28

Inläggav Kalejdokom » 2010-08-24 14:12

Jag passar på att gå lite off topic (i min egen tråd :) ).

Vid mätning på högtalare så beskrivs ju ofta svårigheten med alla reflexer som påverkar mätresultatet. Vad säger expertisen om följande förslag till mätmetod. Tacksam för kommentarer om varför det inte är lämpligt att göra så här eller vad det ev kan ha för fördelar:

Man riggar någon form av ställning framför/längs sidorna av högtalarna och hänger en riktigt luddig pläd eller filt över så att det bildas ett "tält" framför högtalaren. Mikrofonen placeras i tältet och mätning sker "som vanligt". Även golvet dämpas med typ heltäckningsmatta eller skivor av Gullfiber e.d.

Det blir ju inte ett ekofritt rum, men en bit på väg... som sagt, kan man göra så för att slippa en del problem med rumspåverkan vid mätningen?

Jag inser förstås att rummet sedan spelar stor roll för hur det låter "på riktigt", men det kan ju bli nästa steg i åtgärdskedjan.

Nästa

Återgå till DIY-forum


Vilka är online

Användare som besöker denna kategori: Inga registrerade användare och 16 gäster