Morgan skrev:Jag har upptäckt att vi missat att fråga:
Blir det slutet eller basreflex?
Slutet, c.a 2 liter/element.
Moderator: Redaktörer
tvett skrev:Självborrande, mdf och dra bra låter som "välj två av tre" med tanke på mdfs sprickbenägenhet.
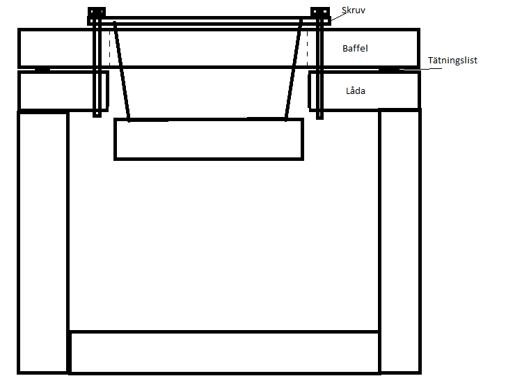
rylandes skrev:Jag såg en skruv hos RABU som såg trevlig ut. Har dock inte provat den själv, men verkar rimlig. Tyvärr inte helt gratis.
RABU skruvset M4*25mm Buttonhead (insex?).
http://www.rabu-acoustics.dk/index.php?route=product/category&path=61_67
--

tvett skrev:Om du ska fästa fronten med dem så är det ett måste att ha frigång. Utan gäng på skaftet slipper du borra olika stora hål. Dem där ska jag nog ha till BillBull.
kodapa skrev:Kan det bli något av detta tro?![]()
Användare som besöker denna kategori: MacBruce och 17 gäster