Moderator: Redaktörer
phon skrev:9710 kan vara lite vass lyssnad rakt framifrån, men det går ju att vända bort den lite.

paa skrev:Hög och smal låda?phon skrev:9710 kan vara lite vass lyssnad rakt framifrån, men det går ju att vända bort den lite.
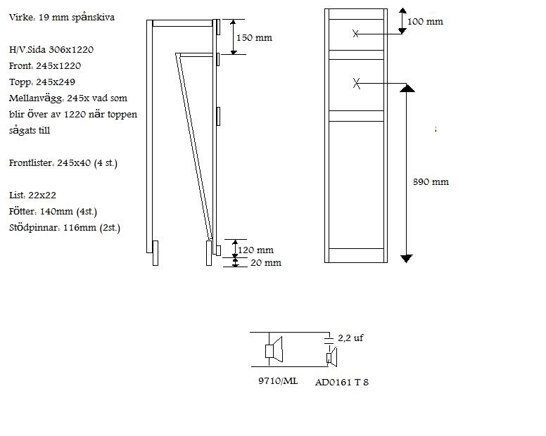
Så här då kanske:
rolfzetterberg skrev: Philips AD5046-originallådan.
Fler detaljer(med hål och allt)
http://home.planet.nl/~rneervoo/philips.htm
rolfzetterberg skrev:Jag slängde i ett par 9710or i mina tomma lådor(fick tag i dem så-vet inte varför elementen var borta,men priset var klart bra,så...),men tycker nog att ljudet blir lite för "forward" för min smak.Däremot kan 9710an låta fantastisk riktad lite uppåt.Ingen som provat en 45 graders lutad front?
rolfzetterberg skrev:Philips AD5046-originallådan.
Fler detaljer(med hål och allt)
http://home.planet.nl/~rneervoo/philips.htm
Jag slängde i ett par 9710or i mina tomma lådor(fick tag i dem så-vet inte varför elementen var borta,men priset var klart bra,så...),men tycker nog att ljudet blir lite för "forward" för min smak.Däremot kan 9710an låta fantastisk riktad lite uppåt.Ingen som provat en 45 graders lutad front?
Användare som besöker denna kategori: Inga registrerade användare och 12 gäster