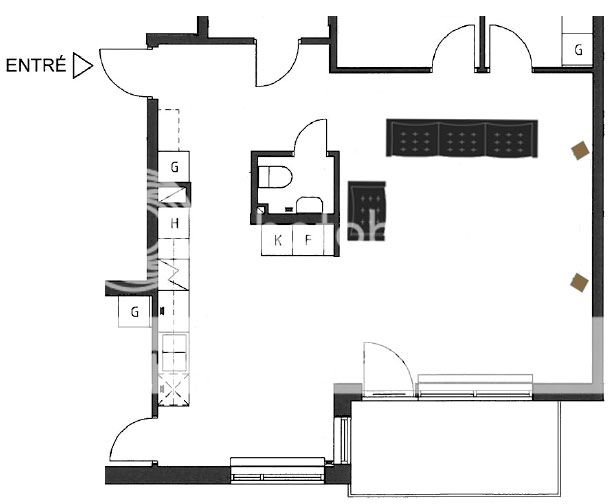
Alexi skrev:Med en mindre soffa skulle det nog fungera.
Men inte med den jag har nu, ser riktigt skumt ut på ritning iaf. men jag får flytta runt sen och se hur det ser ut live.

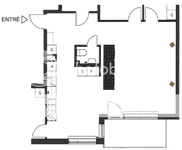
Soffan i tidigare skisser var inte riktigt skalenlig, här är mer exakta mått.
Va kul att ni hittat ett nytt boende!
Härligt.
Jag har undrat hur det gått.
5a?
Radhus?
Lägenhet?
Hur är vardagsrummet i skick?
Kommer ni att göra nåt med rummet rent allmänt?
Tapetsera, måla om?
Har man rivit väggar för öppen planlösning?
Men först av allt vill ni ha sterio å teve i vardagsrummet över huvudtaget?
Kanske bara musikanläggning i vardagsrummet?
Teve å spel med en annan anläggning i annat rum kanske?
1) Vilka andra rum skulle kunna var användbara som teve-spelrum alternativt musik-teve-spelrum?
2)Annars känns det instinktivt som att jag ändå vill gå på hur du tänkte först.
Om ni ändå kommer måla/tapetsera om så:
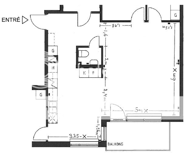
-Förläng väggen på ömse sidor om "toaväggen"
Ni kan nog klara er med 1 m öppning i korridoren "norr" om ön vilket ger +0,6 m, söder om ön kan du på samma sätt få +1,4 med en 1 m öppning mot köket. Där kan du om du vill ha flexibiltet, fälla in skjutdörr för att stänga till helt till köket om ni vill slippa se disken.
Möbleringsmässigt känns det mer flexibelt tycker jag.
Hur som helst jättekul att ni kommit till skott.

I CAN´T THINK.... ..... OF ANYTHING BOW LP2