Moderator: Redaktörer
ljungberg_Sthlm skrev:Altec var en av de stora under 60-70 talet med några riktiga klassiker inom högtalare t ex Voice of The theatre.
Någon här på forumet som kör Altec idag? Hur står sig deras element om man jämför mot t ex moderna JBL?
ljungberg_Sthlm skrev:Yes han var med.
Men hur står sig dessa idag mot moderna element.
Varför jag frågar är för att jag är sugen på att bygga ett par Model 19.
Adhoc skrev:Snåljåpsfirma med rabatten. 3390:-/st för A7-8-kittet, 10 sketna spänn eller 0,3% lägre, jämfört med att köpa de separata delarna.
(Edit mot fg inlägg, 411-8A var nog basen i Model 19)
Perfector skrev:ljungberg_Sthlm skrev:Yes han var med.
Men hur står sig dessa idag mot moderna element.
Varför jag frågar är för att jag är sugen på att bygga ett par Model 19.
Är det JBL så är det nog samma tekniska kvalitet, det är ju en av Lansings grundstenar.
Altec Lansing bör då ha samma då Lansing inte skulle tillåta att hans namn smutsas ner av dålig produktionskvalitet.
ljungberg_Sthlm skrev:Adhoc skrev:Snåljåpsfirma med rabatten. 3390:-/st för A7-8-kittet, 10 sketna spänn eller 0,3% lägre, jämfört med att köpa de separata delarna.
(Edit mot fg inlägg, 411-8A var nog basen i Model 19)
416-8b enligt The vintage knob

paa skrev:Den här ser ju OK ut också, och har lite modernare basreflexportning än gamla m19, och är väl inte omöjligt stor heller. [ Bild ]
Vad heter den, Valencia?
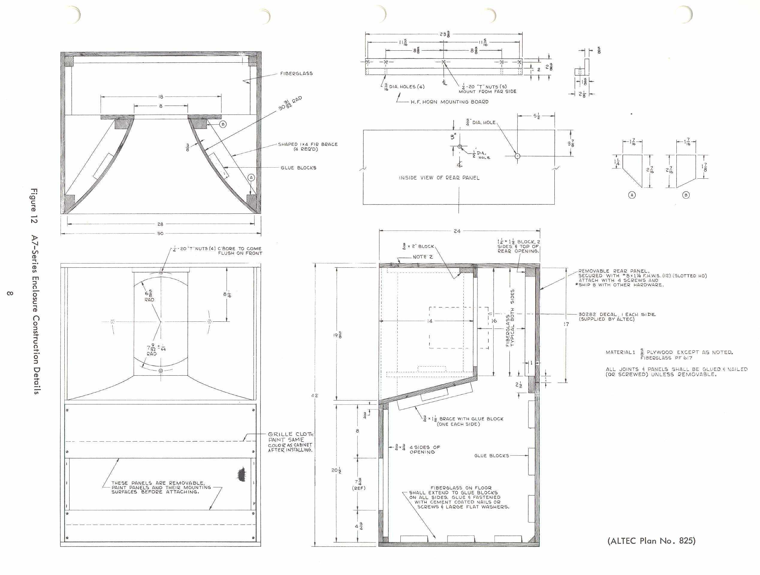
Har du hittat ritning på den?
Det verkar finnas både en gammal variant, och den nyare som ser ut som bilden.
Försök få tag på ritning för den nyare varianten om det går.
Gör i vilket fall färdig ytfinishen på vad du än bygger, annars är det risken att det aldrig blir färdigt.
Adhoc skrev:Fotot du lagt in är på Altec Valencia-lådan ur Altecs byggritningskatalog från 1976 (?), har katalogen i gömmorna någonstans, med 416-8B + 811-hornet. Även den lådan kan ses som lite liten för att klämma ut det nedersta i basregistret. Man gjorde den "för liten" för att den skulle passa in lättare i hemmiljö.
paa skrev:En mindre låda kommer att ge mindre bas, oavsett hur högt eller lågt du spelar.
ljungberg_Sthlm skrev:Bygge av en onken låda.
http://www.audioheritage.org/vbulletin/ ... fers/page2
Däremot är ju frågan hur mycket sämre lådan med portar skulle bli. Man kommer ju inte spela så att de närmsta grannarna ramlar ur soffan
Bill50x skrev:paa skrev:En mindre låda kommer att ge mindre bas, oavsett hur högt eller lågt du spelar.
Nu är vi där med definition igen. Mindre (=lägre) bas eller mindre djup?
/ B
Användare som besöker denna kategori: Google [Bot], RMA och 29 gäster